26 Griffin Industrial Point , Cochrane. T4C 0A2
Description
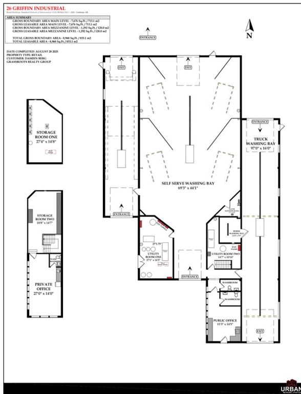
Introducing a rare opportunity to own a purpose-built, high-visibility commercial property designed to serve a wide range of vehicle types — from compact cars to large trucks. Located in the thriving industrial area of Griffin Industrial, this 8,968 sq ft facility offers a turn-key solution for operators in the car/truck wash industry or those seeking a unique income-producing asset. Main Level Highlights: 4 self-serve wash bays, Massive 96-ft Truck & RV Bay (Max Height: 13’6”), Touchless Typhoon drive-through wash bay, Dedicated room for a potential dog wash, Public office, 2 utility rooms, water softener room, and two 2-pc washrooms Mezzanine Level: Private office, 2 storage rooms, Additional 2-pc washroom Modern, clean, and professionally maintained, this facility is equipped with premium components, a brand new Navien Boiler System, and intuitive flow-through access for ease of customer use. The office space is bright and welcoming, while the mezzanine level provides functional work and storage areas. Additional Features: Paved access routes and drive-through lanes, Excellent signage exposure, Plenty of customer and employee parking, Easy access for trucks, trailers, and RVs. This property is ideal for an owner-operator or investor looking to expand or enter the car/truck wash industry with a one-of-a-kind facility — a rarity in today’s market. High-traffic location with quick access to major commuter and transport routes makes this an unbeatable opportunity.
Listing Information
For fast response, please email us via the “Inquiry Via Email” button with your contact information.
Listing MLS#:A2254001
26 Griffin Industrial Point ,
Cochrane. T4C 0A2
Liang Commercial Real Estate
To purchase a business or property, please visit "Our People", to find a commercial experts who specialize in the type of business or property you are looking for, and agents speak your langauges and have office in your city.
This listing is presented by CENTURY 21 BRAVO REALTY, courtesy of "Grassroots Realty Group" listing brokerage.
Google map



